Progetti e concorsi

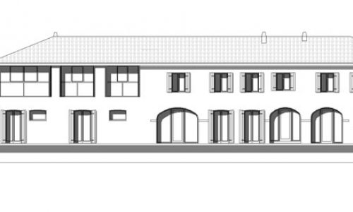
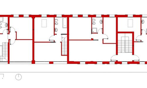
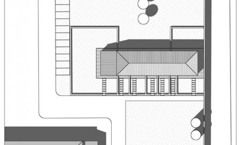
Restauro e ristrutturazione di un edificio ottocentesco

    Progettazione delle opere di restauro e ristrutturazione di un edificio rurale ottocentesco all'interno del complesso monumentale di Villa Corner della Regina.

  • Anno
    2007
  • Città
    Treviso
  • Indirizzo
    Cavasagra di Vedelago, via Trento e Trieste

Progettazione preliminare