Progetti e concorsi

Alloggi all'interno del P.U.A

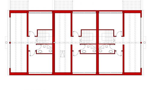
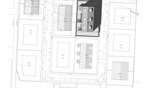
    Progetto di un edificio residenziale costituiti da complessivi 3 alloggi all'interno del P.U.A. denominato Planivolumetrico la Fucina.

  • Anno
    2011
  • Città
    Venezia
  • Indirizzo
    Maerne di Martellago, via Roviego

Progettazione preliminare