Progetti e concorsi

Edificio residenziale 12 allogi

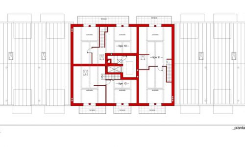
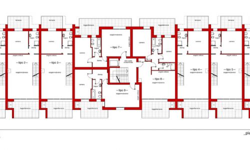
    Progetto di un edificio residenziale costituito da complessivi 12 alloggi all'interno del P.U.A. per l'Area Perequata n. 7.

  • Anno
    2011
  • Città
    Padova
  • Indirizzo
    Montegrotto Terme, via San Daniele

Progettazione preliminare