Home
Lo studio
Servizi
Realizzazioni
Nuove Costruzioni e ristrutturazioni
Restauri e interventi su edifici storici
Attività commerciali e direzionali
Allestimenti di Esposizioni d'Arte
Progetti e concorsi
Curriculum
Contatti
Home
Lo studio
Servizi
Realizzazioni
Nuove Costruzioni e ristrutturazioni
Restauri e interventi su edifici storici
Attività commerciali e direzionali
Allestimenti di Esposizioni d'Arte
Progetti e concorsi
Curriculum
Contatti
+39 0415084026
Home
Progetti concorsi
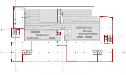
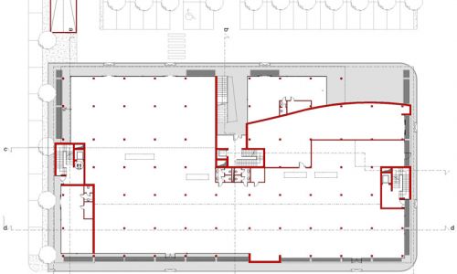
Edificio direzionale e commerciale del P.I.R.U.E.A
Progetti e concorsi
Edificio direzionale e commerciale del P.I.R.U.E.A
Progetto di un edificio direzionale e commerciale all'interno del P.I.R.U.E.A.
Anno
2003/2004
Città
Limena
Indirizzo
Via Breda
Progettazione preliminare
Home
Home
Lo studio
Servizi
Contatti
Realizzazioni
Nuove realizzazioni e ristrutturazioni
Restauri e interventi su edifici storici
Attività commerciale e direzionali
Allestimenti
Progetti e concorsi
Privacy - Informativa
Mappa del sito
Powered by
TECNOSOFT