Progetti e concorsi

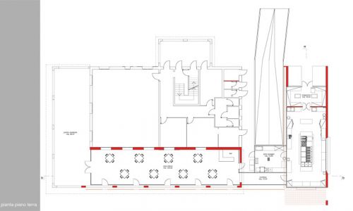
Cucina del Palazzo delle Attività Ricreative

    Progetto, ristrutturazione ed ampliamento con creazione di un nuovo locale ad uso cucina del Palazzo delle Attività Ricreative.

  • Anno
    2006
  • Città
    Treviso
  • Indirizzo
    Maserada sul Piave

Progettazione preliminare