Nuove costruzioni e ristrutturazioni

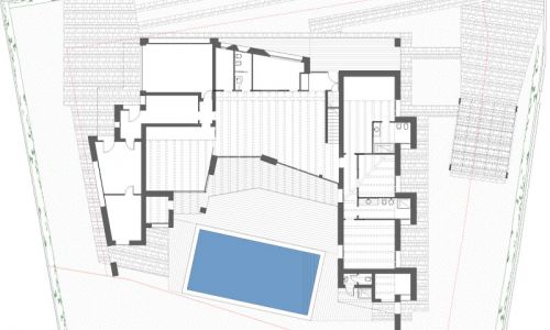
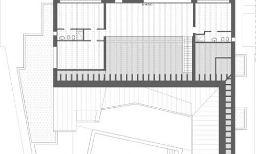
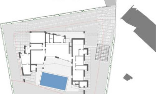
Edificio residenziale unifamiliare Roncade

    Progettazione e direzione lavori delle opere di realizzazione di un edificio residenziale unifamiliare.

  • Anno
    2013/2016
  • Città
    Roncade
  • Indirizzo
    Via Pantiera