Nuove costruzioni e ristrutturazioni

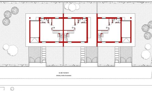
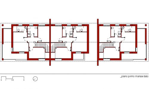
Edificio residenziale trifamiliare Favaro Veneto

    Progettazione e direzione lavori delle opere per la realizzazione di un edificio residenziale trifamiliare in comune di Venezia.

  • Anno
    2004/2006
  • Città
    Favaro Veneto
  • Indirizzo
    Via dei Mandarini
Interni

Progettazione e direzione lavori