Nuove costruzioni e ristrutturazioni

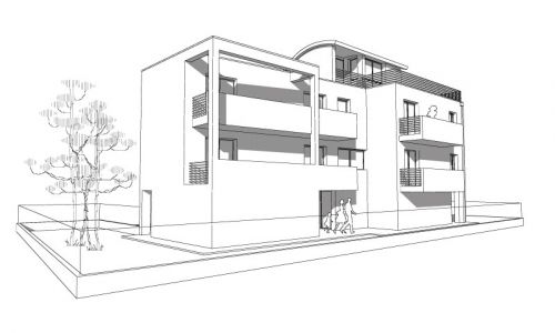
Nuova costruzione con ampliamento Spinea

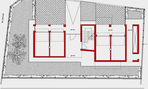
    Progettazione e direzione lavori delle opere di demolizione e nuova costruzione con ampliamento di un edificio residenziale composto da 4 alloggi.

  • Anno
    2003/2005
  • Città
    Spinea
  • Indirizzo
    Via Mons. Giussani n°2
Interni

Progettazione e direzione lavori